- 売買物件
- アパガーデン東金沢ウエスト壱番館 マンション
- NEW
- 物件種別
- マンション
- 所在地
- 金沢市高柳町10の1番地13
- 価格
- 2,780万円
- 取引形態
- 専属専任
- 土地面積
- 7410.95㎡
- 地目
- 宅地
- 校区
- 浅野町小/鳴和中
- 構造
- 鉄筋コンクリート造陸屋根
- 建物面積
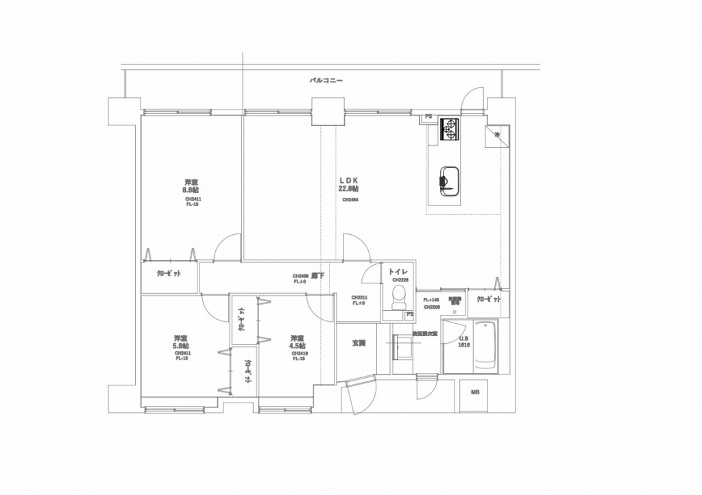
- 14120.3㎡ 専有面積90.56㎡
- 築年
- 1997年11月
【LDK22帖!フルリノベ物件】
キッチンの造作照明が空間に落ち着きと洗練された雰囲気を演出します♪
2026年3月末まで工事中!
お気軽にお問合せください(*^^*)



